Roermond - Dionysiusstraat 1
Ben jij op zoek naar sfeer en charme? En wil je graag in de binnenstad wonen, liefst ook met een (stads)tuin? Dan is dit karakteristieke woonhuis aan de Dionysiusstraat misschien wel jouw nieuwe thuis!

Klik om meer te zien
Kenmerken
Woonoppervlakte
103
m2
Overige inpandige ruimte
28
m2
Gebouwgebonden buitenruimte
0
m2
Perceel
75
m2
Inhoud
385
m3
Externe bergruimte
10
m2
Bouwjaar
Type object
WOONHUIS
Vraagprijs
€
300000
k.k.
Aanvaarding
IN_OVERLEG
Verkocht onder voorbehoud
De woning
Ben jij op zoek naar sfeer en charme? En wil je graag in de binnenstad wonen, liefst ook met een (stads)tuin? Dan is dit karakteristieke woonhuis aan de Dionysiusstraat misschien wel jouw nieuwe thuis! Dit woonhuis biedt charme, maar heeft ook nog wat werk. Daar krijg je wel veel leefruimte en een woning middenin het centrum voor terug.
De woning ligt echt middenin de stad, vlakbij het Munsterplein. Verder wandel je zo naar alle voorzieningen die de binnenstad te bieden heeft. Zo zijn het NS station, het Stationsplein, maar ook de Roerkade, met haar vele gezellige terrassen, allemaal hartstikke dichtbij gelegen. De woning beschikt ook over een parkeervergunning, dus je auto kun je gewoon in de straat parkeren.
De indeling is als volgt:
Souterrain
Via de keuken is de provisiekelder (17 m²) te bereiken, met extra bergruimte.
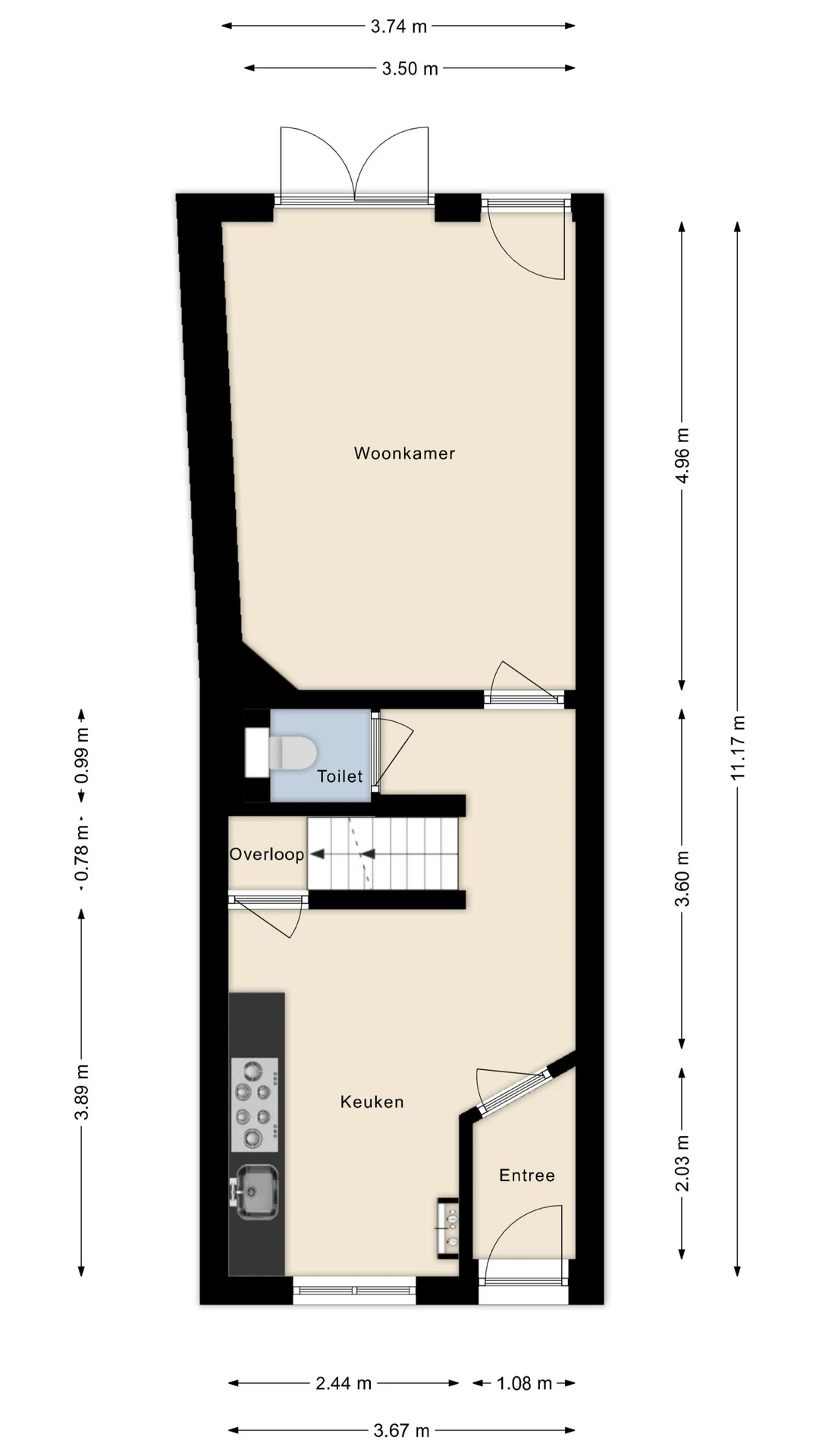
Begane grond
Vanuit de entreehal van deze stadswoning, kom je gelijk in de keuken. Deze is voldoende ruim en kan prima als leefkeuken fungeren. Het keukenblok beschikt over een gasfornuis met oven en een afzuigkap. De woonkamer ligt aan de achterzijde en heeft hierdoor veel privacy en een fijn tuincontact. De dubbele deuren en de extra deur, zorgen dat je alles lekker helemaal open kunt zetten op een zonnige zomerdag. Tenslotte ligt het gastentoilet tussen de keuken en woonkamer in.
Eerste verdieping
Op de 1e verdieping zijn 2 ruime slaapkamers, een kastenwand en een extra douche gelegen. De slaapkamer aan de achterzijde heeft een dakkapel en beide slaapkamers hebben een goede maatvoering. De douche op deze verdieping kun je ombouwen tot een toilet.
Tweede verdieping
De 2e verdieping is ook royaal en deze bestaat uit een 3e slaapkamer en de badkamer. De badkamer is ruim van opzet en beschikt over een ligbad met douchecombinatie, een wastafel en een toilet. Ook hier is een dakkapel aanwezig, waardoor je ook hier over meer ruimte beschikt.
Zolderverdieping
Via een vlizotrap is de zolderverdieping toegankelijk. Dit is nu een bergruimte en hier hangt de CV combiketel (Vaillant, 2025, eigendom). Mocht je een vaste trap realiseren, dan kun je hier ook nog een extra kamer maken.
Stadstuin
De stadstuin aan de achterzijde is onderhoudsvriendelijk aangelegd en helemaal voorzien van bestrating. De tuin heeft een gunstige ligging op het Westen en in de tuin ligt nog een stenen tuinberging. De tuin is geheel omsloten.
Zie jij jezelf al wonen in karakteristieke woonhuis en wil je eens komen kijken? Neem contact met ons op, op 0475 252 111 of stuur ons een mailtje. Onze makelaar Menno maakt graag een afspraak met jou om deze woning te bezichtigen.
De woning ligt echt middenin de stad, vlakbij het Munsterplein. Verder wandel je zo naar alle voorzieningen die de binnenstad te bieden heeft. Zo zijn het NS station, het Stationsplein, maar ook de Roerkade, met haar vele gezellige terrassen, allemaal hartstikke dichtbij gelegen. De woning beschikt ook over een parkeervergunning, dus je auto kun je gewoon in de straat parkeren.
De indeling is als volgt:
Souterrain
Via de keuken is de provisiekelder (17 m²) te bereiken, met extra bergruimte.
Begane grond
Vanuit de entreehal van deze stadswoning, kom je gelijk in de keuken. Deze is voldoende ruim en kan prima als leefkeuken fungeren. Het keukenblok beschikt over een gasfornuis met oven en een afzuigkap. De woonkamer ligt aan de achterzijde en heeft hierdoor veel privacy en een fijn tuincontact. De dubbele deuren en de extra deur, zorgen dat je alles lekker helemaal open kunt zetten op een zonnige zomerdag. Tenslotte ligt het gastentoilet tussen de keuken en woonkamer in.
Eerste verdieping
Op de 1e verdieping zijn 2 ruime slaapkamers, een kastenwand en een extra douche gelegen. De slaapkamer aan de achterzijde heeft een dakkapel en beide slaapkamers hebben een goede maatvoering. De douche op deze verdieping kun je ombouwen tot een toilet.
Tweede verdieping
De 2e verdieping is ook royaal en deze bestaat uit een 3e slaapkamer en de badkamer. De badkamer is ruim van opzet en beschikt over een ligbad met douchecombinatie, een wastafel en een toilet. Ook hier is een dakkapel aanwezig, waardoor je ook hier over meer ruimte beschikt.
Zolderverdieping
Via een vlizotrap is de zolderverdieping toegankelijk. Dit is nu een bergruimte en hier hangt de CV combiketel (Vaillant, 2025, eigendom). Mocht je een vaste trap realiseren, dan kun je hier ook nog een extra kamer maken.
Stadstuin
De stadstuin aan de achterzijde is onderhoudsvriendelijk aangelegd en helemaal voorzien van bestrating. De tuin heeft een gunstige ligging op het Westen en in de tuin ligt nog een stenen tuinberging. De tuin is geheel omsloten.
Zie jij jezelf al wonen in karakteristieke woonhuis en wil je eens komen kijken? Neem contact met ons op, op 0475 252 111 of stuur ons een mailtje. Onze makelaar Menno maakt graag een afspraak met jou om deze woning te bezichtigen.
Wat maakt deze woning speciaal?
- Sfeervolle stadswoning
- Maar liefst 100 m² woonoppervlakte
- Charmante details
- Stadstuin aan de achterzijde
- 3 Volwaardige slaapkamers
- Zolderverdieping met veel mogelijkheden
- Parkeervergunning via de gemeente
- Woning dient opgeknapt te worden
- Middenin de sfeervolle Roermondse binnenstad








































