Ittervoort - Anemoonstraat 3
In een rustige straat in Ittervoort, nabij de dorpskern, ligt deze fijne 2-onder-1-kap woning. De woning heeft een praktische indeling op de begane grond, waarbij de ruime serre en de goede tuin echte pluspunten zijn. Boven beschikt de woning over 4 slaapkamers, een royale zolderverdieping, en een ruime kelder. Kortom: een heerlijke woning met veel mogelijkheden.

Klik om meer te zien
Kenmerken
Woonoppervlakte
114
m2
Overige inpandige ruimte
41
m2
Gebouwgebonden buitenruimte
33
m2
Perceel
278
m2
Inhoud
425
m3
Externe bergruimte
4
m2
Bouwjaar
1965
Type object
WOONHUIS
Vraagprijs
€
289000
k.k.
Aanvaarding
IN_OVERLEG
Verkocht onder voorbehoud
De woning
In een rustige straat in Ittervoort, nabij de dorpskern, ligt deze fijne 2-onder-1-kap woning. De woning heeft een praktische indeling op de begane grond, waarbij de ruime serre en de goede tuin echte pluspunten zijn. Boven beschikt de woning over 4 slaapkamers, een royale zolderverdieping, en een ruime kelder. Kortom: een heerlijke woning met veel mogelijkheden. Kom je ook een kijkje nemen?
Dit nette woonhuis ligt op loopafstand bij de voorzieningen in het dorp, waaronder een basisschool en sportfaciliteiten. Ook kun je genieten van de nabijgelegen Maasplassen en de vele natuur in de directe omgeving. Via de A2 en N273 ben je bovendien in no time in Weert, Roermond of zelfs Maastricht en Eindhoven. Tenslotte ligt de Belgische grens ligt op circa 3 km afstand. Ideaal voor wie rustig wonen wil combineren met uitstekende verbindingen naar de steden.
Indeling:
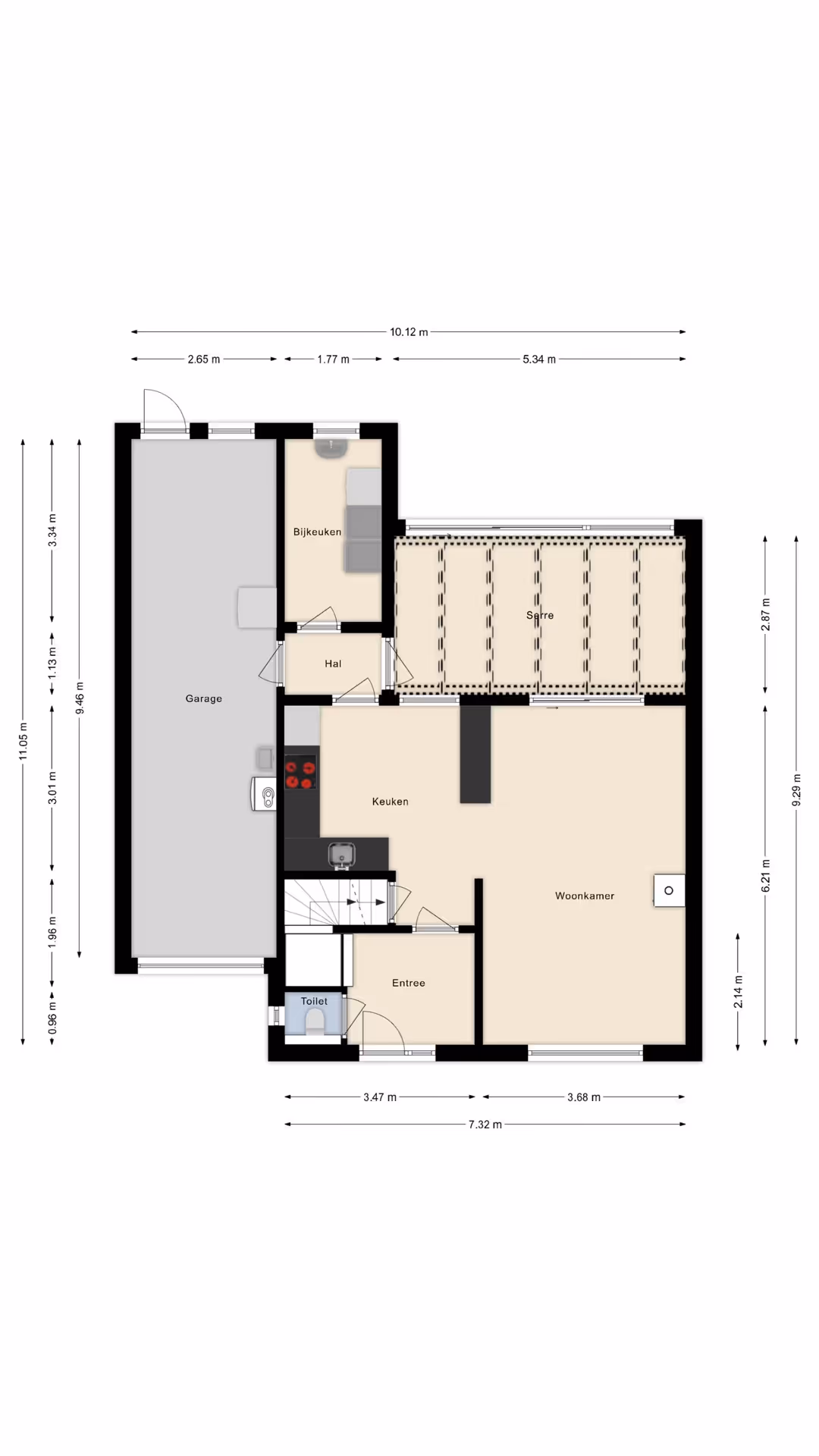
Begane grond
Je komt binnen in de ruime hal met het gastentoilet. Vanuit hier bereik je de lichte woonkamer met halfopen keuken. Deze moderne keuken is uitgerust met een combi-oven, koelkast, vaatwasser, inductiekookplaat en een gezellig barretje om aan te zitten of te tafelen. Vanuit de keuken bereik je ook de ruime provisiekelder. Naast de keuken kom je in een 2e hal, welke toegang geef naar een praktische bijkeuken / wasruimte en de inpandige garage.
De woonkamer is voorzien van een nette pvc-vloer en een sfeervolle houtkachel die zorgt voor extra warmte en gezelligheid. De houten kozijnen met dubbel glas dragen bij aan het goede wooncomfort. Via de woonkamer stap je de serre binnen; deze heeft vloerverwarming en een schuifpui met dubbel glas, waardoor je het hele jaar door kunt genieten van veel extra leefruimte in deze fijne kamer.
Eerste verdieping
Op de eerste verdieping bevinden zich 4 nette slaapkamer en de compacte badkamer, welke is voorzien van een douche en een wastafel. Vanuit één van deze slaapkamers heb je toegang tot het royale dakterras, een ideale extra buitenplek om te ontspannen. Verder hebben de slaapkamers houten kozijnen met enkele beglazing en rolluiken.
Tweede verdieping
Via een vlizotrap bereik je de zolderverdieping met ook hier nog een hoop extra bergruimte en een geïsoleerd dak. Handig toch?
Tuin
Voorts heeft deze nette gezinswoning nog een verzorgde en volledig met muren omsloten achtertuin. Verder beschikt deze tuin over een terras achter de woning, een gazon en her en der groen en beplanting. Verder liggen in de tuin een praktische houtopslag (met veel hout voor de houtkachel in de woonkamer) en een tuinhuis. De tuin is gelegen op het noorden, maar beschikt door de gunstige ligging, toch over veel zon in de zomermaanden. En zowel vanuit de tuin, als het dakterras heb je een mooi uitzicht op de kerk. Tenslotte heeft dit fijne woonhuis aan de voorzijde nog een ruime oprit, geschikt voor 2 auto’s. In de straat liggen extra openbare parkeerplaatsen, met 2 laadpalen voor elektrische auto’s.
Ben je enthousiast geworden over deze keurige 2-onder-1-kap woning? Bel ons dan op 0475 252 111 of stuur ons een mailtje. Onze makelaar Menno staat je graag te woord!
Dit nette woonhuis ligt op loopafstand bij de voorzieningen in het dorp, waaronder een basisschool en sportfaciliteiten. Ook kun je genieten van de nabijgelegen Maasplassen en de vele natuur in de directe omgeving. Via de A2 en N273 ben je bovendien in no time in Weert, Roermond of zelfs Maastricht en Eindhoven. Tenslotte ligt de Belgische grens ligt op circa 3 km afstand. Ideaal voor wie rustig wonen wil combineren met uitstekende verbindingen naar de steden.
Indeling:
Begane grond
Je komt binnen in de ruime hal met het gastentoilet. Vanuit hier bereik je de lichte woonkamer met halfopen keuken. Deze moderne keuken is uitgerust met een combi-oven, koelkast, vaatwasser, inductiekookplaat en een gezellig barretje om aan te zitten of te tafelen. Vanuit de keuken bereik je ook de ruime provisiekelder. Naast de keuken kom je in een 2e hal, welke toegang geef naar een praktische bijkeuken / wasruimte en de inpandige garage.
De woonkamer is voorzien van een nette pvc-vloer en een sfeervolle houtkachel die zorgt voor extra warmte en gezelligheid. De houten kozijnen met dubbel glas dragen bij aan het goede wooncomfort. Via de woonkamer stap je de serre binnen; deze heeft vloerverwarming en een schuifpui met dubbel glas, waardoor je het hele jaar door kunt genieten van veel extra leefruimte in deze fijne kamer.
Eerste verdieping
Op de eerste verdieping bevinden zich 4 nette slaapkamer en de compacte badkamer, welke is voorzien van een douche en een wastafel. Vanuit één van deze slaapkamers heb je toegang tot het royale dakterras, een ideale extra buitenplek om te ontspannen. Verder hebben de slaapkamers houten kozijnen met enkele beglazing en rolluiken.
Tweede verdieping
Via een vlizotrap bereik je de zolderverdieping met ook hier nog een hoop extra bergruimte en een geïsoleerd dak. Handig toch?
Tuin
Voorts heeft deze nette gezinswoning nog een verzorgde en volledig met muren omsloten achtertuin. Verder beschikt deze tuin over een terras achter de woning, een gazon en her en der groen en beplanting. Verder liggen in de tuin een praktische houtopslag (met veel hout voor de houtkachel in de woonkamer) en een tuinhuis. De tuin is gelegen op het noorden, maar beschikt door de gunstige ligging, toch over veel zon in de zomermaanden. En zowel vanuit de tuin, als het dakterras heb je een mooi uitzicht op de kerk. Tenslotte heeft dit fijne woonhuis aan de voorzijde nog een ruime oprit, geschikt voor 2 auto’s. In de straat liggen extra openbare parkeerplaatsen, met 2 laadpalen voor elektrische auto’s.
Ben je enthousiast geworden over deze keurige 2-onder-1-kap woning? Bel ons dan op 0475 252 111 of stuur ons een mailtje. Onze makelaar Menno staat je graag te woord!










































