Roermond - Raadhuisstraat 16
Ben jij op zoek naar heel veel ruimte, midden in de kern van Maasniel? Bijvoorbeeld om je eigen zaak aan huis te hebben en een woon- werkcombinatie te realiseren? Of zoek jij je eigen vastgoedproject en realiseer je hier 2 (of meer) appartementen?

Klik om meer te zien
Kenmerken
Woonoppervlakte
300
m2
Overige inpandige ruimte
0
m2
Gebouwgebonden buitenruimte
67
m2
Perceel
192
m2
Inhoud
1061
m3
Externe bergruimte
0
m2
Bouwjaar
1972
Type object
WOONHUIS
Vraagprijs
€
325000
k.k.
Aanvaarding
IN_OVERLEG
Verkocht onder voorbehoud
De woning
Ben jij op zoek naar heel veel ruimte, midden in de kern van Maasniel? Bijvoorbeeld om je eigen zaak aan huis te hebben en een woon- werkcombinatie te realiseren? Of zoek jij je eigen vastgoedproject en realiseer je hier 2 (of meer) appartementen? Dit riante pand aan de Raadhuisstraat 16 omvat maar liefst 300 m² woonoppervlakte én heeft een eigen dakterras. Het is wel belangrijk dat je van klussen houdt, want dit object verdient een grondige renovatie / modernisering. Maar dan kun je hier wel heel veel (woon)wensen realiseren. Kom jij een kijkje nemen?
Dit woon/werk object heeft op de begane grond een (auto) showroom gevestigd gehad en op de 1e en 2e verdieping een volwaardige woning, met dakterras en eigen toegang. Het pand ligt in de kern van Maasniel, met alle voorzieningen in de directe nabijheid. Zo liggen een supermarkt, andere winkels en een basisschool allemaal op loopafstand en zijn ook uitvalswegen en de Roermondse binnenstad vlakbij gelegen.
De indeling is als volgt:
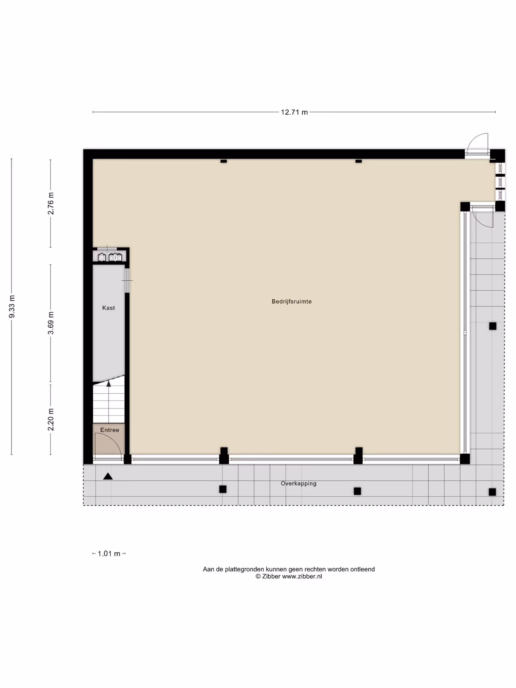
Begane grond
Op de begane grond ligt de voormalige showroom. Deze ruimte heeft een eigen toegang en glazen puien tot vloerniveau, over 2 zijden van het pand. Door de open indeling, kun je hier alle kanten mee op, voor wat betreft je eigen plannen en wensen. De begane grond heeft een oppervlakte van 110 m².
Eerste verdieping
Via de toegang op de begane grond, kom je op de 1e verdieping, waar het woonhuis is gelegen. Deze verdieping bestaat uit een woonkamer met hoekligging en veel lichtinval, een aparte keuken, 2 slaapkamers, een badkamer, apart toilet en bijkeuken / berging. Vanuit de keuken is tenslotte het dakterras bereikbaar. Dit dakterras ligt aan de achterzijde en heeft zicht op de Beekweg. De 1e verdieping heeft een oppervlakte van 133 m².
Tweede verdieping
Middels een vaste trap is de 2e verdieping te bereiken. Deze zolderverdieping heeft nog eens veel (leef)ruimte en hier hangt deze C.V. combiketel. De oppervlakte van deze verdieping bedraagt 57 m².
Heb je interesse in dit interessante vastgoedproject? Bel ons op 0475 252 111 of stuur ons een mailtje. Onze makelaar Menno staat je graag te woord!
Dit woon/werk object heeft op de begane grond een (auto) showroom gevestigd gehad en op de 1e en 2e verdieping een volwaardige woning, met dakterras en eigen toegang. Het pand ligt in de kern van Maasniel, met alle voorzieningen in de directe nabijheid. Zo liggen een supermarkt, andere winkels en een basisschool allemaal op loopafstand en zijn ook uitvalswegen en de Roermondse binnenstad vlakbij gelegen.
De indeling is als volgt:
Begane grond
Op de begane grond ligt de voormalige showroom. Deze ruimte heeft een eigen toegang en glazen puien tot vloerniveau, over 2 zijden van het pand. Door de open indeling, kun je hier alle kanten mee op, voor wat betreft je eigen plannen en wensen. De begane grond heeft een oppervlakte van 110 m².
Eerste verdieping
Via de toegang op de begane grond, kom je op de 1e verdieping, waar het woonhuis is gelegen. Deze verdieping bestaat uit een woonkamer met hoekligging en veel lichtinval, een aparte keuken, 2 slaapkamers, een badkamer, apart toilet en bijkeuken / berging. Vanuit de keuken is tenslotte het dakterras bereikbaar. Dit dakterras ligt aan de achterzijde en heeft zicht op de Beekweg. De 1e verdieping heeft een oppervlakte van 133 m².
Tweede verdieping
Middels een vaste trap is de 2e verdieping te bereiken. Deze zolderverdieping heeft nog eens veel (leef)ruimte en hier hangt deze C.V. combiketel. De oppervlakte van deze verdieping bedraagt 57 m².
Heb je interesse in dit interessante vastgoedproject? Bel ons op 0475 252 111 of stuur ons een mailtje. Onze makelaar Menno staat je graag te woord!
Wat maakt deze woning speciaal?
- Veel leefruimte
- Wonen & werken mogelijk
- Met dakterras
- Eigen entree naar 1e en 2e verdieping
- Geschikt voor veel doeleinden
- 300 m² Woonoppervlakte
- Eigen kadastraal perceel
- Op loopafstand van een supermarkt, winkels, basisschool en op minder dan 5 autominuten van de A73




































