Roermond - Venloseweg 55
Zoek jij heel veel leefruimte, een prachtige tuin met een grote garage / loods en een huis met sfeer en charme? Kom dan eens kijken bij de Venloseweg 55! Dit karakteristieke woonhuis ligt vlakbij de binnenstad, is halfvrijstaand en heeft maar liefst 4 slaapkamers.

Klik om meer te zien
Kenmerken
Woonoppervlakte
176
m2
Overige inpandige ruimte
5
m2
Gebouwgebonden buitenruimte
18
m2
Perceel
200
m2
Inhoud
430
m3
Externe bergruimte
41
m2
Bouwjaar
1884
Type object
WOONHUIS
Vraagprijs
€
489000
k.k.
Aanvaarding
IN_OVERLEG
Verkocht onder voorbehoud
De woning
Zoek jij heel veel leefruimte, een prachtige tuin met een grote garage / loods en een huis met sfeer en charme? Kom dan eens kijken bij de Venloseweg 55! Dit karakteristieke woonhuis ligt vlakbij de binnenstad, is halfvrijstaand en heeft maar liefst 4 slaapkamers.
Dit halfvrijstaande herenhuis is ontzettend sfeervol, met mooie, hoge plafonds en andere details die woningen van voor 1900 zo mooi maken. De tuin is ook royaal, het huis heeft maar liefst 176 m² woonoppervlakte en een energielabel A. Ideaal toch?
De indeling is als volgt:
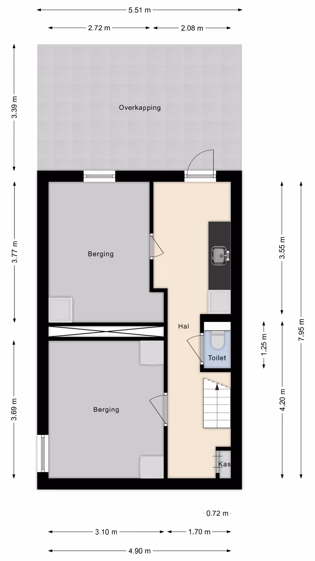
Souterrain
Het souterrain van dit stijlvolle herenhuis herbergt 2 ruime kamers, welke momenteel als bergruimtes in gebruik zijn. Beide kamers, zeker de ruimte grenzend aan de tuin, zouden echter prima als kantoor aan huis, speelkamer of hobbyruimte kunnen fungeren. In de hal van dit souterrain ligt tevens een extra toilet en nog een keukenblok. Via deze hal kom je ook in de tuin aan de achterzijde.
Begane grond
Bij de entree van dit sfeervolle woonhuis valt de mooie, houten trappartij gelijk op. Verder liggen in de hal het gastentoilet en de meterkast. De woonkamer is meer dan 11 meter lang, aangezien deze aan de achterzijde is uitgebreid met een aanbouw. Hier bevindt zich momenteel de eethoek, met prachtig zicht op de achtertuin. De keuken ligt in het midden van de ruimte en heeft een U-opstelling met veel kastruimte, een barretje en de volgende inbouwapparatuur: een 5-pits inductiekookplaat met RVS afzuigkap, koelkast, combi-oven en vaatwasser. Tenslotte heeft de keuken een fraai, natuurstenen blad met veel werkruimte.
Eerste verdieping
Via de overloop op de 1e verdieping zijn 2 ruime slaapkamers en de badkamer toegankelijk. Deze badkamer bevat een ligbad met douchecombinatie, een wastafelmeubel met dubbele wastafel en een 3e toilet. De beide slaapkamers op deze verdieping hebben een keurig niveau van afwerking en kunststof kozijnen met dubbele beglazing, net als de badkamer.
Tweede verdieping
Op de 2e verdieping van dit herenhuis liggen nog eens 2 ruime slaapkamers en een extra toilet met wastafelmeubel. Ook deze slaapkamers kenmerken zich door veel ruimte, want ook hier passen 2-persoonsbedden. Beide slaapkamers op deze verdieping beschikken over dakkapellen en hebben, net als de slaapkamers op de 1e verdieping, een uitstekend niveau van afwerking.
Zolder
Tenslotte heeft deze woning nog een zolder, bereikbaar via een vlizotrap. Hier is veel extra bergruimte en hier hangen technische installaties, waaronder de collector voor de zonnepanelen, de warmtewisselaar van de hybride warmtepomp (2022) en de CV combiketel (Remeha, eigendom, 2022).
Tuin
De tuin van dit herenhuis is royaal en prachtig aangelegd met veel groen en beplanting. Verder heeft deze tuin geen buren aan de achterzijde en beschikt deze over 3 terrassen. Eén van deze terrassen ligt op het dak van de garage. Deze vrijstaande garage is zeer ruim; de afmetingen zijn 5,27 x 7,92 meter en hij is via een ventweg aan de achterzijde te bereiken met een auto of werkbus. Onder de aanbouw van deze sfeervolle woning ligt het overdekte terras. Hier kun je zelfs bij regenachtig weer heerlijk vertoeven, zodat je altijd kunt genieten van deze prachtige tuin. Tenslotte ligt naast de woning nog een paadje, waardoor de tuin ook over een eigen achterom beschikt, die via dit paadje is te bereiken.
Word jij net zo enthousiast als wij van dit charmante woonhuis? Neem contact met ons op, op 0475 252 111 of stuur ons een mailtje. Onze makelaar Menno maakt graag een afspraak met u om deze woning te bezichtigen.
Dit halfvrijstaande herenhuis is ontzettend sfeervol, met mooie, hoge plafonds en andere details die woningen van voor 1900 zo mooi maken. De tuin is ook royaal, het huis heeft maar liefst 176 m² woonoppervlakte en een energielabel A. Ideaal toch?
De indeling is als volgt:
Souterrain
Het souterrain van dit stijlvolle herenhuis herbergt 2 ruime kamers, welke momenteel als bergruimtes in gebruik zijn. Beide kamers, zeker de ruimte grenzend aan de tuin, zouden echter prima als kantoor aan huis, speelkamer of hobbyruimte kunnen fungeren. In de hal van dit souterrain ligt tevens een extra toilet en nog een keukenblok. Via deze hal kom je ook in de tuin aan de achterzijde.
Begane grond
Bij de entree van dit sfeervolle woonhuis valt de mooie, houten trappartij gelijk op. Verder liggen in de hal het gastentoilet en de meterkast. De woonkamer is meer dan 11 meter lang, aangezien deze aan de achterzijde is uitgebreid met een aanbouw. Hier bevindt zich momenteel de eethoek, met prachtig zicht op de achtertuin. De keuken ligt in het midden van de ruimte en heeft een U-opstelling met veel kastruimte, een barretje en de volgende inbouwapparatuur: een 5-pits inductiekookplaat met RVS afzuigkap, koelkast, combi-oven en vaatwasser. Tenslotte heeft de keuken een fraai, natuurstenen blad met veel werkruimte.
Eerste verdieping
Via de overloop op de 1e verdieping zijn 2 ruime slaapkamers en de badkamer toegankelijk. Deze badkamer bevat een ligbad met douchecombinatie, een wastafelmeubel met dubbele wastafel en een 3e toilet. De beide slaapkamers op deze verdieping hebben een keurig niveau van afwerking en kunststof kozijnen met dubbele beglazing, net als de badkamer.
Tweede verdieping
Op de 2e verdieping van dit herenhuis liggen nog eens 2 ruime slaapkamers en een extra toilet met wastafelmeubel. Ook deze slaapkamers kenmerken zich door veel ruimte, want ook hier passen 2-persoonsbedden. Beide slaapkamers op deze verdieping beschikken over dakkapellen en hebben, net als de slaapkamers op de 1e verdieping, een uitstekend niveau van afwerking.
Zolder
Tenslotte heeft deze woning nog een zolder, bereikbaar via een vlizotrap. Hier is veel extra bergruimte en hier hangen technische installaties, waaronder de collector voor de zonnepanelen, de warmtewisselaar van de hybride warmtepomp (2022) en de CV combiketel (Remeha, eigendom, 2022).
Tuin
De tuin van dit herenhuis is royaal en prachtig aangelegd met veel groen en beplanting. Verder heeft deze tuin geen buren aan de achterzijde en beschikt deze over 3 terrassen. Eén van deze terrassen ligt op het dak van de garage. Deze vrijstaande garage is zeer ruim; de afmetingen zijn 5,27 x 7,92 meter en hij is via een ventweg aan de achterzijde te bereiken met een auto of werkbus. Onder de aanbouw van deze sfeervolle woning ligt het overdekte terras. Hier kun je zelfs bij regenachtig weer heerlijk vertoeven, zodat je altijd kunt genieten van deze prachtige tuin. Tenslotte ligt naast de woning nog een paadje, waardoor de tuin ook over een eigen achterom beschikt, die via dit paadje is te bereiken.
Word jij net zo enthousiast als wij van dit charmante woonhuis? Neem contact met ons op, op 0475 252 111 of stuur ons een mailtje. Onze makelaar Menno maakt graag een afspraak met u om deze woning te bezichtigen.
Wat maakt deze woning speciaal?
- Gelegen aan de rand van de binnenstad
- Statig herenhuis
- Energielabel A
- Incl. riante garage / loods, met auto bereikbaar
- 10 Zonnepanelen en een hybride warmtepomp
- Halfvrijstaand
- Veel leefruimte, maar liefst 176 m²
- 4 Slaapkamers
- Prachtige tuin, met veel privacy




















































