Horn - Hoefstraat 40
Zoek jij een moderne 2-onder-1-kap woning met garage, in een fijne jonge woonwijk, op een mooie locatie aan de rand van Horn? En liefst ook nog eentje waar je zo in kunt trekken? Dat komt goed uit, dan is dit nette woonhuis aan Hoefstraat 40 echt iets voor jou!

Klik om meer te zien
Kenmerken
Woonoppervlakte
77
m2
Overige inpandige ruimte
17
m2
Gebouwgebonden buitenruimte
24
m2
Perceel
170
m2
Inhoud
340
m3
Externe bergruimte
0
m2
Bouwjaar
2005
Type object
WOONHUIS
Vraagprijs
€
300000
k.k.
Aanvaarding
IN_OVERLEG
Verkocht onder voorbehoud
De woning
Zoek jij een moderne 2-onder-1-kap woning met garage, in een fijne jonge woonwijk, op een mooie locatie aan de rand van Horn? En liefst ook nog eentje waar je zo in kunt trekken? Dat komt goed uit, dan is dit nette woonhuis aan Hoefstraat 40 echt iets voor jou!
Deze keurig onderhouden en halfvrijstaande woning is gebouwd omstreeks 2005 en heeft dus al een uitstekend isolatieniveau, met dakisolatie, muur- en vloerisolatie en kozijnen met HR++ beglazing. Verder heeft dit huis 3 slaapkamers op de 1e verdieping en een mooie tuin. Wat wil je nog meer?
De indeling is als volgt:
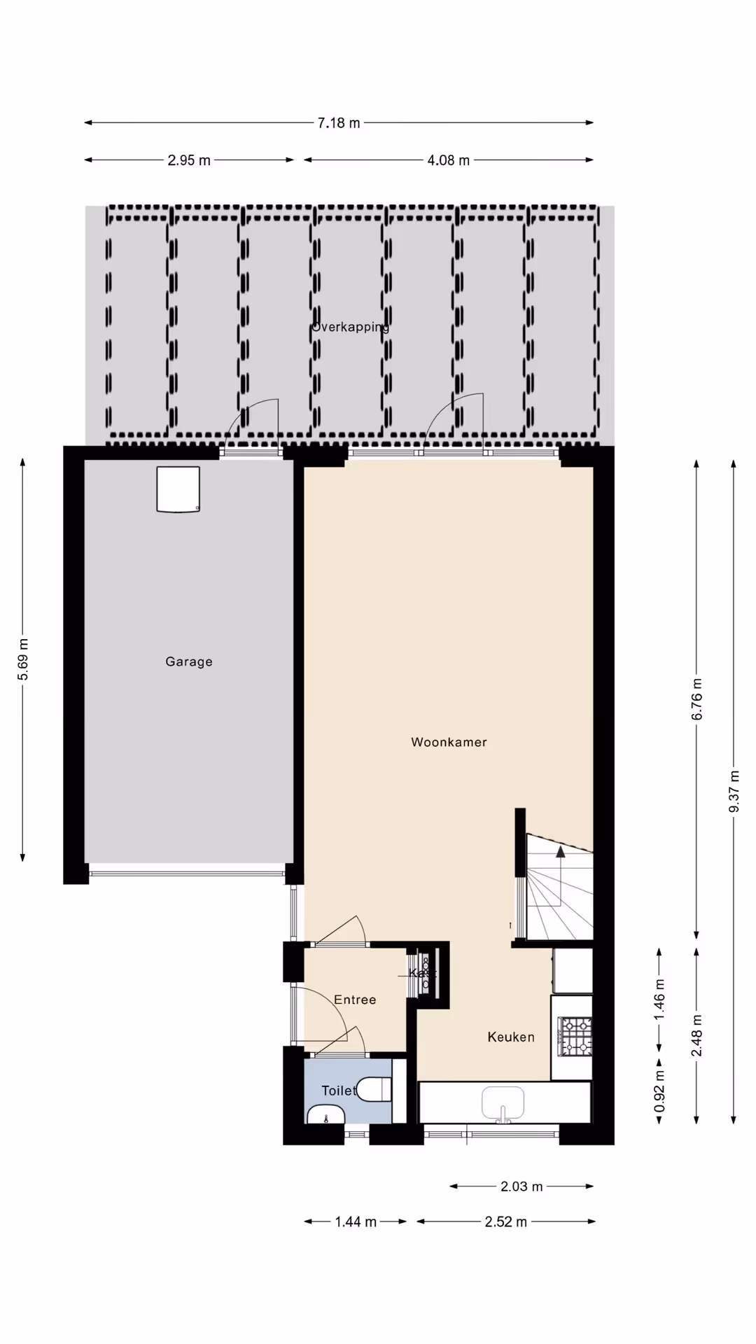
Begane grond
Via de entreehal, waar tevens het gastentoilet met fonteintje en de meterkast zijn gelegen, kom je in de woonkamer. Deze woonkamer ligt aan de achterzijde van de woning en heeft zicht op de tuin. De woonkamer beschikt over een sfeervolle parketvloer en aan de voorkant van het huis ligt de keuken. Deze jonge keuken, in hoekopstelling en met een antraciet kleur, beschikt over de volgende inbouwapparatuur: 4-pits gasfornuis met afzuigkap, combi-magnetron, koelkast en vaatwasser.
Eerste verdieping
Via de overloop op de 1e verdieping zijn de badkamer en 3 (slaap)kamers bereikbaar. Alle 3 deze kamers hebben een keurig niveau van afwerking en zij beschikken over kozijnen met HR++ beglazing en rolluiken. De 2 grootste slaapkamers hebben laminaatvloeren en de 3e kamer een tegelvloer. Eerder stond hier de wasmachine, maar nu is deze kamer als werkplek / studeerkamer in gebruik. De hoofdslaapkamer ligt aan de achterzijde en heeft een airco die kan koelen en verwarmen. De geheel betegelde badkamer bestaat uit een douchecabine, 2e toilet en modern wastafelmeubel. Tenslotte ligt op deze verdieping nog een bergkast, waar de CV combiketel is geplaatst (Nefit, eigendom, 2021).
Tuin
De achtertuin van dit fijne woonhuis is onderhoudsvriendelijk aangelegd met een gazon van kunstgras, 2 grote terrassen en een borders met beplanting. De tuin is geheel omheind en het terras achter de woning is voorzien van een luxe en royale terrasoverkapping. Door deze overkapping tevens is de garage droog te bereiken. Verder heeft de overkapping zonne-screens over de gehele achterzijde. De garage, met elektrische poort, is nu voornamelijk als bergruimte in gebruik en herbergt tevens de aansluitpunten voor het witgoed. Aan de voorzijde heeft dit fijne woonhuis tenslotte nog een eigen oprit.
Heb jij interesse in dit mooie woonhuis? Bel ons op 0475 252 111 of stuur ons een mailtje. Onze makelaar Menno staat je graag te woord!
Deze keurig onderhouden en halfvrijstaande woning is gebouwd omstreeks 2005 en heeft dus al een uitstekend isolatieniveau, met dakisolatie, muur- en vloerisolatie en kozijnen met HR++ beglazing. Verder heeft dit huis 3 slaapkamers op de 1e verdieping en een mooie tuin. Wat wil je nog meer?
De indeling is als volgt:
Begane grond
Via de entreehal, waar tevens het gastentoilet met fonteintje en de meterkast zijn gelegen, kom je in de woonkamer. Deze woonkamer ligt aan de achterzijde van de woning en heeft zicht op de tuin. De woonkamer beschikt over een sfeervolle parketvloer en aan de voorkant van het huis ligt de keuken. Deze jonge keuken, in hoekopstelling en met een antraciet kleur, beschikt over de volgende inbouwapparatuur: 4-pits gasfornuis met afzuigkap, combi-magnetron, koelkast en vaatwasser.
Eerste verdieping
Via de overloop op de 1e verdieping zijn de badkamer en 3 (slaap)kamers bereikbaar. Alle 3 deze kamers hebben een keurig niveau van afwerking en zij beschikken over kozijnen met HR++ beglazing en rolluiken. De 2 grootste slaapkamers hebben laminaatvloeren en de 3e kamer een tegelvloer. Eerder stond hier de wasmachine, maar nu is deze kamer als werkplek / studeerkamer in gebruik. De hoofdslaapkamer ligt aan de achterzijde en heeft een airco die kan koelen en verwarmen. De geheel betegelde badkamer bestaat uit een douchecabine, 2e toilet en modern wastafelmeubel. Tenslotte ligt op deze verdieping nog een bergkast, waar de CV combiketel is geplaatst (Nefit, eigendom, 2021).
Tuin
De achtertuin van dit fijne woonhuis is onderhoudsvriendelijk aangelegd met een gazon van kunstgras, 2 grote terrassen en een borders met beplanting. De tuin is geheel omheind en het terras achter de woning is voorzien van een luxe en royale terrasoverkapping. Door deze overkapping tevens is de garage droog te bereiken. Verder heeft de overkapping zonne-screens over de gehele achterzijde. De garage, met elektrische poort, is nu voornamelijk als bergruimte in gebruik en herbergt tevens de aansluitpunten voor het witgoed. Aan de voorzijde heeft dit fijne woonhuis tenslotte nog een eigen oprit.
Heb jij interesse in dit mooie woonhuis? Bel ons op 0475 252 111 of stuur ons een mailtje. Onze makelaar Menno staat je graag te woord!
Wat maakt deze woning speciaal?
- 2-onder-1-kap woning
- Nieuw dak (2025)
- Instapklaar niveau van afwerking
- Goede ligging in fijne woonwijk in Horn
- Dak-, muur- en vloerisolatie
- Moderne keuken
- Kozijnen met HR++ glas
- Nette badkamer
- 3 Slaapkamers
- Bouwjaar 2005
- Heerlijke tuin met mooie terrasoverkapping




























