Herkenbosch - Europalaan-Oost 62
Ben je op zoek naar een fijne (gezins)woning in Herkenbosch? Op loopafstand van de dorpskern, maar ook vlakbij natuurgebied De Meinweg? Dan is dit misschien wel jouw nieuwe droomhuis!
Deze nette 2-onder-1-kap woning heeft veel leefruimte en in totaal maar liefst 4 slaapkamers. Verder heeft de woning een keurige tuin, met daarin een vrijstaande garage. De woning heeft verder een prima isolatiepakket met kozijnen met HR+ beglazing, dak-, vloer- en spouwisolatie, deels vloerverwarming en 10 zonnepanelen uit 2022.

Klik om meer te zien
Kenmerken
Woonoppervlakte
135
m2
Overige inpandige ruimte
11
m2
Gebouwgebonden buitenruimte
24
m2
Perceel
406
m2
Inhoud
440
m3
Externe bergruimte
16
m2
Bouwjaar
1968
Type object
WOONHUIS
Vraagprijs
€
375000
k.k.
Aanvaarding
IN_OVERLEG
Verkocht onder voorbehoud
De woning
Ben je op zoek naar een fijne (gezins)woning in Herkenbosch? Op loopafstand van de dorpskern, maar ook vlakbij natuurgebied De Meinweg? Dan is dit misschien wel jouw nieuwe droomhuis!
Deze nette 2-onder-1-kap woning heeft veel leefruimte en in totaal maar liefst 4 slaapkamers. Verder heeft de woning een keurige tuin, met daarin een vrijstaande garage. De woning heeft verder een prima isolatiepakket met kozijnen met HR+ beglazing, dak-, vloer- en spouwisolatie, deels vloerverwarming en 10 zonnepanelen uit 2022.
De indeling is als volgt:
Souterrain
Provisieruimte, gelegen onder de hal van het woonhuis en met de opstelplaats van de CV combiketel (Vaillant, 2011, eigendom).
Begane grond
Entree in de ontvangsthal, met toegang naar de woonkamer, toilet met fonteintje, meterkast en toegang naar de kelder. Deze sfeervolle woonkamer heeft een keurig niveau van afwerking, met vloerverwarming, een stijlvolle pvc vloer en een gezellige houtkachel. Tevens hangt in de woonkamer een jonge airco die kan koelen en verwarmen. De nette keuken, eveneens met een fraaie lichtinval en vloerverwarming, heeft een moderne opstand en de volgende inbouwapparatuur: een 6-pits gasfornuis, wasemkap, koelkast, 2 ovens en een vaatwasser. Vervolgens is aan achterzijde van deze fijne woning nog een luxe overdekt terras, met lichtstraat en gelegen over de gehele breedte van het pand.
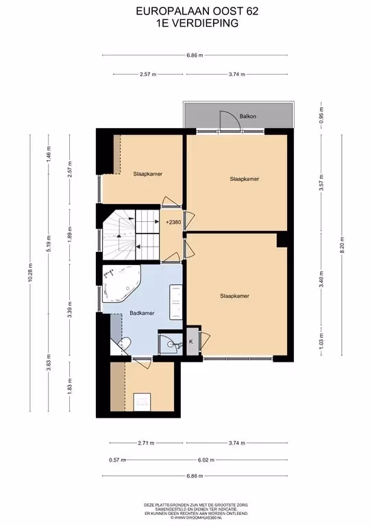
Eerste verdieping
Via de overloop zijn 3 ruime slaapkamers en de badkamer toegankelijk. Deze badkamer beschikt over een modern wastafelmeubel met dubbele kranen, een royaal hoekbad, een douche en een 2e toilet. Achter de badkamer is nog een bergruimte gelegen, met opstelplaats van de wasmachine. Ook op deze verdieping is het niveau van afwerking uitstekend en zijn alle 3 de slaapkamers voorzien van mooie laminaatvloeren.
Tweede verdieping
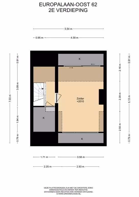
Via een vaste trap is de 2e verdieping te bereiken, waar via de overloop een bergruimte en een 4e slaapkamer toegankelijk zijn. Deze extra (slaap)kamer heeft een groot dakraam en schuifkasten aan beide kanten in de dakschuinte.
Tuin:
Deze fijne 2-onder-1-kap woning heeft ook een heerlijke tuin, welke fraai is aangelegd, met een royaal terras met terrasoverkapping en lichtstraat. Aan de zijkant ligt een gazon en de tuin heeft verder diverse bordessen met beplanting. Tenslotte ligt in de tuin een vrijstaande garage en is deze bereikbaar via een achterom. Achter een poort is extra plaats voor bijvoorbeeld het stallen van een aanhanger of camper.
Heb je interesse in deze mooie gezinswoning? Bel ons op 0475 252 111 of stuur ons een mailtje. Onze makelaar Menno staat je graag te woord!
Deze nette 2-onder-1-kap woning heeft veel leefruimte en in totaal maar liefst 4 slaapkamers. Verder heeft de woning een keurige tuin, met daarin een vrijstaande garage. De woning heeft verder een prima isolatiepakket met kozijnen met HR+ beglazing, dak-, vloer- en spouwisolatie, deels vloerverwarming en 10 zonnepanelen uit 2022.
De indeling is als volgt:
Souterrain
Provisieruimte, gelegen onder de hal van het woonhuis en met de opstelplaats van de CV combiketel (Vaillant, 2011, eigendom).
Begane grond
Entree in de ontvangsthal, met toegang naar de woonkamer, toilet met fonteintje, meterkast en toegang naar de kelder. Deze sfeervolle woonkamer heeft een keurig niveau van afwerking, met vloerverwarming, een stijlvolle pvc vloer en een gezellige houtkachel. Tevens hangt in de woonkamer een jonge airco die kan koelen en verwarmen. De nette keuken, eveneens met een fraaie lichtinval en vloerverwarming, heeft een moderne opstand en de volgende inbouwapparatuur: een 6-pits gasfornuis, wasemkap, koelkast, 2 ovens en een vaatwasser. Vervolgens is aan achterzijde van deze fijne woning nog een luxe overdekt terras, met lichtstraat en gelegen over de gehele breedte van het pand.
Eerste verdieping
Via de overloop zijn 3 ruime slaapkamers en de badkamer toegankelijk. Deze badkamer beschikt over een modern wastafelmeubel met dubbele kranen, een royaal hoekbad, een douche en een 2e toilet. Achter de badkamer is nog een bergruimte gelegen, met opstelplaats van de wasmachine. Ook op deze verdieping is het niveau van afwerking uitstekend en zijn alle 3 de slaapkamers voorzien van mooie laminaatvloeren.
Tweede verdieping
Via een vaste trap is de 2e verdieping te bereiken, waar via de overloop een bergruimte en een 4e slaapkamer toegankelijk zijn. Deze extra (slaap)kamer heeft een groot dakraam en schuifkasten aan beide kanten in de dakschuinte.
Tuin:
Deze fijne 2-onder-1-kap woning heeft ook een heerlijke tuin, welke fraai is aangelegd, met een royaal terras met terrasoverkapping en lichtstraat. Aan de zijkant ligt een gazon en de tuin heeft verder diverse bordessen met beplanting. Tenslotte ligt in de tuin een vrijstaande garage en is deze bereikbaar via een achterom. Achter een poort is extra plaats voor bijvoorbeeld het stallen van een aanhanger of camper.
Heb je interesse in deze mooie gezinswoning? Bel ons op 0475 252 111 of stuur ons een mailtje. Onze makelaar Menno staat je graag te woord!
Wat maakt deze woning speciaal?
- Gelegen in Herkenbosch, vlakbij de dorpskern en natuurgebied de Meinweg
- Ruime woonkamer met sfeervolle haard en airco
- Fijne, ruimte tuin met terrasoverkapping
- 3 Ruime slaapkamers op de 1e verdieping
- Vaste trap naar de zolder met 4e slaapkamer
- 10 Zonnepanelen uit 2022
- Grotendeels voorzien van rolluiken
- Woonoppervlakte van 135 m²







































