Herten - Jean Monnetstraat 19
Zoek je een huis met veel leefruimte, een inpandige garage en ook nog eens een energielabel A+? Dan hebben wij jouw droomhuis gevonden!

Klik om meer te zien
Kenmerken
Woonoppervlakte
140
m2
Overige inpandige ruimte
24
m2
Gebouwgebonden buitenruimte
24
m2
Perceel
305
m2
Inhoud
560
m3
Externe bergruimte
0
m2
Bouwjaar
2004
Type object
WOONHUIS
Vraagprijs
€
465000
k.k.
Aanvaarding
IN_OVERLEG
Verkocht onder voorbehoud
De woning
Heb je altijd al in een mooi en vrijstaand woonhuis in Herten willen wonen? Een woning die ook nog duurzaam en goed geïsoleerd is? Dan is dit misschien wel jouw nieuwe droomhuis!
Deze riante vrijstaande woning heeft maar liefst 140 m² woonoppervlakte, een inpandige garage en 4 slaapkamers. Dit keurig onderhouden woonhuis heeft verder nog een diepe tuin, gelegen op het zuiden en v.w.b. isolatie heeft de woning dak-, vloer- en muurisolatie en overal hardhouten kozijnen met HR++ beglazing. De Jean Monnetstraat is gelegen in de courante woonwijk de “Kop van Herten” en ligt op loopafstand van basisscholen, het winkelcentrum van Herten en de Maasplassen. De binnenstad van Roermond ligt op fietsafstand en de A73 op slechts enkele autominuten rijden.
De indeling is als volgt:
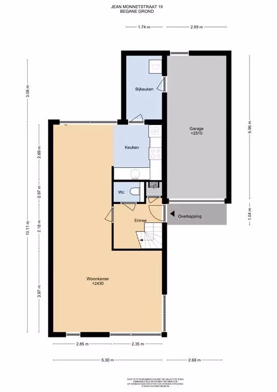
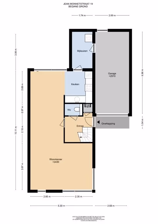
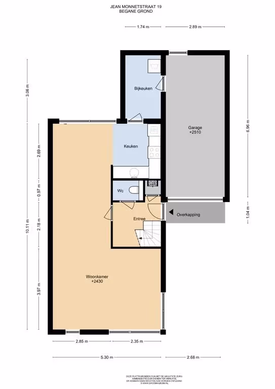
Begane grond
Via de entreehal, waar tevens het gastentoilet en de moderne meterkast zijn gelegen, kom je in de woonkamer. Deze L-vormige woonkamer is lekker licht en ruim van opzet. Aan de achterzijde ligt de half open keuken, met modern keukenblok, die van alle gemakken is voorzien. De keuken is uitgevoerd met de volgende inbouwapparatuur: vaatwasser, combi oven/magnetron, koelkast en keramische kookplaat met wasemkap. Vanuit de keuken zijn achtereenvolgens de bijkeuken en de inpandige garage te bereiken. In de bijkeuken zijn o.a. de aansluitpunten voor het witgoed aanwezig. De inpandige garage is voorzien van elektra en beschikt over een elektrische sectionaalpoort.
Eerste verdieping
Via de overloop op de 1e verdieping zijn 3 slaapkamers, een apart toilet en de badkamer bereikbaar. De hoofdslaapkamer, gelegen aan de voorzijde van het woonhuis, is zeer royaal. Alle slaapkamers hebben een keurig niveau van afwerking, met o.a. laminaatvloeren. Net als op de begane grond zijn alle kozijnen uitgevoerd in hardhout en met HR++ beglazing. De moderne badkamer is van alle gemakken voorzien, met een ligbad, een douchecabine en een modern wastafelmeubel met dubbele wastafel.
Tweede verdieping
Middels een vaste trap is de 2e verdieping te bereiken. Op deze verdieping ligt een ruime 4e slaapkamer, een aparte berging en een heerlijk ruim dakterras van maar liefst 25m². In de kamer die als berging in gebruik is, zit tevens een vliering, waardoor je nog meer bergruimte hebt. Ook bevinden zich hier de technische installaties, met de WTW (warmteterugwin) unit en CV combiketel (Nefit Trendline HRC, 2016, eigendom).
Tuin
De achtertuin van dit fijne woonhuis is keurig netjes aangelegd en heeft in het midden een prachtige boom, die zowel voor privacy als voor wat schaduw op zonnige dagen zorgt. Verder is er een groot terras, een gazon en is de tuin geheel omheind. Aan de voorzijde beschikt het perceel over een oprit, geschikt voor meerdere voertuigen.
Heeft u interesse in dit moderne en vrijstaande woonhuis? Bel ons op 0475 252 111 of stuur ons een email. Onze makelaar Menno kan niet wachten om het aan u te laten zien.
Deze riante vrijstaande woning heeft maar liefst 140 m² woonoppervlakte, een inpandige garage en 4 slaapkamers. Dit keurig onderhouden woonhuis heeft verder nog een diepe tuin, gelegen op het zuiden en v.w.b. isolatie heeft de woning dak-, vloer- en muurisolatie en overal hardhouten kozijnen met HR++ beglazing. De Jean Monnetstraat is gelegen in de courante woonwijk de “Kop van Herten” en ligt op loopafstand van basisscholen, het winkelcentrum van Herten en de Maasplassen. De binnenstad van Roermond ligt op fietsafstand en de A73 op slechts enkele autominuten rijden.
De indeling is als volgt:
Begane grond
Via de entreehal, waar tevens het gastentoilet en de moderne meterkast zijn gelegen, kom je in de woonkamer. Deze L-vormige woonkamer is lekker licht en ruim van opzet. Aan de achterzijde ligt de half open keuken, met modern keukenblok, die van alle gemakken is voorzien. De keuken is uitgevoerd met de volgende inbouwapparatuur: vaatwasser, combi oven/magnetron, koelkast en keramische kookplaat met wasemkap. Vanuit de keuken zijn achtereenvolgens de bijkeuken en de inpandige garage te bereiken. In de bijkeuken zijn o.a. de aansluitpunten voor het witgoed aanwezig. De inpandige garage is voorzien van elektra en beschikt over een elektrische sectionaalpoort.
Eerste verdieping
Via de overloop op de 1e verdieping zijn 3 slaapkamers, een apart toilet en de badkamer bereikbaar. De hoofdslaapkamer, gelegen aan de voorzijde van het woonhuis, is zeer royaal. Alle slaapkamers hebben een keurig niveau van afwerking, met o.a. laminaatvloeren. Net als op de begane grond zijn alle kozijnen uitgevoerd in hardhout en met HR++ beglazing. De moderne badkamer is van alle gemakken voorzien, met een ligbad, een douchecabine en een modern wastafelmeubel met dubbele wastafel.
Tweede verdieping
Middels een vaste trap is de 2e verdieping te bereiken. Op deze verdieping ligt een ruime 4e slaapkamer, een aparte berging en een heerlijk ruim dakterras van maar liefst 25m². In de kamer die als berging in gebruik is, zit tevens een vliering, waardoor je nog meer bergruimte hebt. Ook bevinden zich hier de technische installaties, met de WTW (warmteterugwin) unit en CV combiketel (Nefit Trendline HRC, 2016, eigendom).
Tuin
De achtertuin van dit fijne woonhuis is keurig netjes aangelegd en heeft in het midden een prachtige boom, die zowel voor privacy als voor wat schaduw op zonnige dagen zorgt. Verder is er een groot terras, een gazon en is de tuin geheel omheind. Aan de voorzijde beschikt het perceel over een oprit, geschikt voor meerdere voertuigen.
Heeft u interesse in dit moderne en vrijstaande woonhuis? Bel ons op 0475 252 111 of stuur ons een email. Onze makelaar Menno kan niet wachten om het aan u te laten zien.
Wat maakt deze woning speciaal?
- Vrijstaand woonhuis
- Uitstekend geïsoleerd, bouwjaar 2004
- Energielabel A+, airconditioning en zonnepanelen
- Ruime tuin op het zuiden
- Veel leefruimte, maar liefst 140 m² woonoppervlakte
- In totaal 4 slaapkamers
- Inpandige garage met elektrische sectionaalpoort
- Op loopafstand van het winkelcentrum van Herten, basisscholen en de Maasplassen









































