Reuver - Dovenetelstraat 6
Een riante serre, fijne tuin en vaste trap naar de zolder met 4e slaapkamer... Zomaar enkele kenmerken van dit fijne woonhuis

Klik om meer te zien
Kenmerken
Woonoppervlakte
122
m2
Overige inpandige ruimte
14
m2
Gebouwgebonden buitenruimte
1
m2
Perceel
205
m2
Inhoud
462
m3
Externe bergruimte
14
m2
Bouwjaar
1986
Type object
WOONHUIS
Vraagprijs
€
275000
k.k.
Aanvaarding
IN_OVERLEG
Verkocht onder voorbehoud
De woning
Zoek je een woonhuis waar je meteen in kunt trekken? Geen gedoe met verbouwingen of klussen? Dan hebben wij jouw nieuwe droomhuis gevonden. Deze nette 2-onder-1-kap woning in Reuver, heeft een fraaie serre op de begane grond (dus lekker veel leefruimte) en een vaste trap naar de zolder met 4e (slaap)kamer. De badkamer is ook modern en de tuin onderhoudsvriendelijk. De woning heeft een inpandig te bereiken garage en aan de voorzijde is een riante oprit, super toch?
De indeling is als volgt:
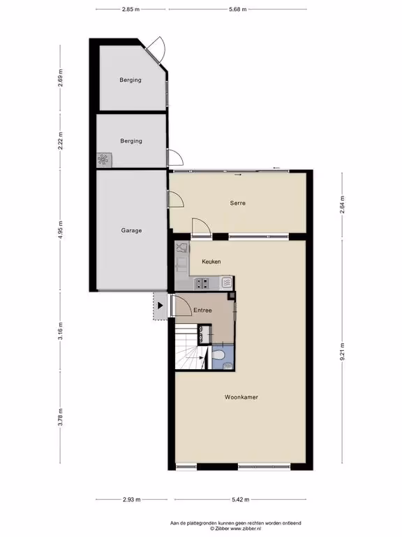
Begane grond
Entree in de ontvangsthal, met toegang naar woonkamer, toilet met fonteintje en meterkast. Deze L-vormige woonkamer heeft een keurig niveau van afwerking en een mooie pvc vloer. Aan de achterzijde is de woonkamer uitgebreid met een serre, waardoor je extra leefruimte hebt en de garage inpandig is geworden. De halfopen keuken heeft een hoekopstelling en de volgende inbouwapparatuur: koelkast, wasemkap, 4-pits gasfornuis, combi oven en vaatwasser. Verder ligt op de begane grond de inpandige garage, met elektrische sectionaalpoort.
Eerste verdieping
Via de overloop zijn 3 nette slaapkamers en de moderne badkamer toegankelijk. Deze badkamer beschikt over een modern wastafelmeubel, een douchecabine, een ligbad en een 2e toilet. Alle 3 de slaapkamers hebben een keurig niveau van afwerking met o.a. pvc vloeren en kunststof kozijnen met dubbele beglazing.
Tweede verdieping
Via een vaste trap is de 2e verdieping te bereiken. Hier bevindt zich een ruime extra kamer, welke prima dienst kan doen als thuiswerkplek of 4e slaapkamer. Verder zijn hier de CV combiketel (Nefit, eigendom, 2017), de collector van de zonnepanelen en de aansluitpunten voor de wasmachine. Tenslotte zit in de dakschuinte veel extra opbergruimte in de kasten met schuifdeuren.
Tuin
Deze fijne woning heeft ook een heerlijke tuin, welke onderhoudsvriendelijk is aangelegd, met diverse zithoekjes. Deze tuin ligt op het Westen en is grotendeels voorzien van een riant terras en heeft enkele bordessen voor beplanting en wat bomen. Tenslotte liggen in de tuin een houten en een aangebouwd stenen tuinberging met veel extra bergruimte of om als gezellig zitje te gebruiken.
Heb je interesse in deze mooie gezinswoning? Bel ons op 0475 252 111 of stuur ons een mailtje. Onze makelaar Menno staat je graag te woord!
De indeling is als volgt:
Begane grond
Entree in de ontvangsthal, met toegang naar woonkamer, toilet met fonteintje en meterkast. Deze L-vormige woonkamer heeft een keurig niveau van afwerking en een mooie pvc vloer. Aan de achterzijde is de woonkamer uitgebreid met een serre, waardoor je extra leefruimte hebt en de garage inpandig is geworden. De halfopen keuken heeft een hoekopstelling en de volgende inbouwapparatuur: koelkast, wasemkap, 4-pits gasfornuis, combi oven en vaatwasser. Verder ligt op de begane grond de inpandige garage, met elektrische sectionaalpoort.
Eerste verdieping
Via de overloop zijn 3 nette slaapkamers en de moderne badkamer toegankelijk. Deze badkamer beschikt over een modern wastafelmeubel, een douchecabine, een ligbad en een 2e toilet. Alle 3 de slaapkamers hebben een keurig niveau van afwerking met o.a. pvc vloeren en kunststof kozijnen met dubbele beglazing.
Tweede verdieping
Via een vaste trap is de 2e verdieping te bereiken. Hier bevindt zich een ruime extra kamer, welke prima dienst kan doen als thuiswerkplek of 4e slaapkamer. Verder zijn hier de CV combiketel (Nefit, eigendom, 2017), de collector van de zonnepanelen en de aansluitpunten voor de wasmachine. Tenslotte zit in de dakschuinte veel extra opbergruimte in de kasten met schuifdeuren.
Tuin
Deze fijne woning heeft ook een heerlijke tuin, welke onderhoudsvriendelijk is aangelegd, met diverse zithoekjes. Deze tuin ligt op het Westen en is grotendeels voorzien van een riant terras en heeft enkele bordessen voor beplanting en wat bomen. Tenslotte liggen in de tuin een houten en een aangebouwd stenen tuinberging met veel extra bergruimte of om als gezellig zitje te gebruiken.
Heb je interesse in deze mooie gezinswoning? Bel ons op 0475 252 111 of stuur ons een mailtje. Onze makelaar Menno staat je graag te woord!
Wat maakt deze woning speciaal?
- Gelegen in een kindvriendelijke woonwijk in Reuver
- Luxe serre op de begane grond
- Inpandig te bereiken garage
- Woonoppervlakte van 122 m²
- Vaste trap naar de zolderverdieping, met 4e (slaap)kamer
- Nette badkamer met ligbad, douche en modern wastafelmeubel
- Inclusief 14 zonnepanelen










































