Roermond – Kruisherenstraat 317

Woon jij graag in de binnenstad? En zoek je een appartement met balkon en eigen berging? Dan is dit appartement in het centrum precies wat je zoekt!
Klik op de foto voor meer

Kenmerken

Woonoppervlakte
85 m2
Overige inpandige ruimte
1 m2
Gebouwgebonden buitenruimte
5 m2
Externe bergruimte
9 m2
Inhoud
285 m3
Type object
APPARTEMENT
Bouwjaar
1979
Vraagprijs
€ 215000 k.k.

De woning

Woon jij graag in de binnenstad? En zoek je een appartement met balkon en eigen berging? Dan is dit appartement in het centrum precies wat je zoekt! Deze fijne woning heeft 2 slaapkamers, maar kan wel een update gebruiken. Heb jij zin om van deze fijne plek, je nieuwe thuis te maken?

Het appartement ligt op de 3e verdieping in het complex “Kruisheren II”. Dit complex MET LIFT bestaat uit 23 appartementen, met bergingen gelegen op de 1e verdieping en waar ook dit appartement, huisnummer 317, over een eigen afgesloten berging beschikt. 

Wonen in de binnenstad betekent dat je alle voorzieningen binnen handbereik / op loopafstand hebt. Zo geniet je van het theater, welke praktisch naast je ligt, wandel je in een paar minuten naar het station en ben je altijd dichtbij de vele terrassen en sfeervolle restaurants die Roermond rijk is.

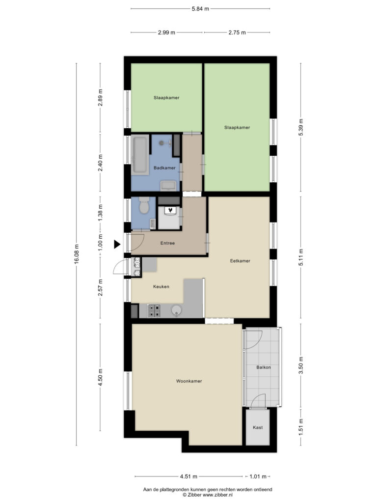
De indeling is als volgt:
 
Begane grond

Centrale entreehal met brievenbussen en intercominstallatie. Lift en trapopgang naar de verdiepingen.
 
Eerste verdieping / 2e bouwlaag

Op deze verdieping bevinden zich de bergingen van de appartementen, waar ook huisnummer 317 over een privé berging beschikt.
 
Derde verdieping / 4e bouwlaag
Het appartement zelf ligt op de 3e verdieping. Je komt binnen in de hal en die geeft toegang tot diverse kamers.
De woonkamer is verdeeld in een zit- en eetkamer en door het feit dat het appartement grote kozijnen heeft, heeft het lekker veel lichtinval.
Vanuit de woonkamer is het balkon te bereiken. Deze fijne buitenruimte is voldoende ruim en kijkt mooi weg, richting de tegenovergelegen gebouwen en de Oranjerie.
Verder heeft het appartement een keuken, met als inbouwapparatuur een kookplaat, afzuigkap, koelkast, vriezer en oven.
De 2 slaapkamers van dit appartement zijn ook voldoende ruim. Je bed en een grote kledingkast passen prima . Verder is vanuit de hal nog de badkamer te bereiken. Deze badkamer heeft een wastafel, ligbad en douche en hier bevindt zich de aansluiting voor de wasmachine. Tenslotte ligt in het appartement nog een apart toilet en een bergkast, waarin zich de CV combiketel bevindt (Nefit, eigendom, 2021). 
 
Ben je enthousiast geworden over dit fijne appartement? Bel ons op 0475 252 111 of stuur ons een mailtje. Onze makelaar Menno staat je graag te woord!
 

Wat maakt deze woning speciaal?

  • Uitstekende ligging in het centrum
  • Complex met LIFT
  • Privé berging
  • Met balkon
  • 2 Slaapkamers
  • Ruime woonkamer met half open keuken
  • Servicekosten € 207,30 per maand, incl. water
  • Gelegen op de 3e verdieping van het complex