Roermond – Abdis Belastraat 13

Heb je altijd al in een mooie, stijlvol gerenoveerde 2-onder-1-kap woning in één van de beste wijken in Roermond willen wonen? En zoek je dan een huis met een mooie leefkeuken, een moderne badkamer en een luxe tuinkamer? Dan is de Abdis Belastraat 13 in Hammerveld misschien wel jouw nieuwe droomhuis!
 
Klik op de foto voor meer

Kenmerken

Woonoppervlakte
145 m2
Overige inpandige ruimte
17 m2
Gebouwgebonden buitenruimte
16 m2
Externe bergruimte
4 m2
Inhoud
425 m3
Type object
WOONHUIS
Bouwjaar
1997
Vraagprijs
€ 525000 k.k.

De woning

Heb je altijd al in een mooie, stijlvol gerenoveerde 2-onder-1-kap woning in één van de beste wijken in Roermond willen wonen? En zoek je dan een huis met een mooie leefkeuken, een moderne badkamer en een luxe tuinkamer? Dan is de Abdis Belastraat 13 in Hammerveld misschien wel jouw nieuwe droomhuis!
 
Deze riante halfvrijstaande woning heeft maar liefst 145 m² woonoppervlakte, een uitbouw aan de achterzijde over 2 verdiepingen én een vaste trap naar de zolder. Dit keurig onderhouden woonhuis heeft verder nog een onderhoudsvriendelijke tuin en een inpandige garage. De woning ligt op een steenworp afstand van de binnenstad van Roermond, een basisschool ligt vlakbij in de wijk en in de hele wijk liggen veel groen- en speelvoorzieningen. Kortom, alles wat je nodig hebt in de directe omgeving.
 
De indeling is als volgt:
 
Begane grond
Via de entreehal, waar tevens het gastentoilet en de meterkast zijn gelegen, kom je in de woonkamer. Deze riante woonkamer heeft een uitstekend niveau van afwerking en is ruim van opzet, mede door de uitbouw aan de achterzijde. Hier ligt  ook de fraaie leefkeuken, welke van alle gemakken is voorzien. De luxe keuken stamt uit 2021 en is uitgevoerd met de volgende inbouwapparatuur: een 5-pits inductiekookplaat, afzuigkap, koelkast, combi oven, boiler en vaatwasser. Zowel de keuken, als de woonkamer hebben een luxe pvc vloer met vloerverwarming. Vanuit de keuken is verder de inpandige garage te bereiken. Ook deze ruimte heeft een uitstekend niveau van afwerking, met een nette vloer en inbouwkasten (met aansluiting voor de wasmachine). Momenteel is de garage alleen als bergruimte in gebruik en ook vanuit de garage is de tuin te bereiken. Tenslotte is vanuit de leefkeuken nog de luxe terrasoverkapping / tuinkamer te bereiken. Deze stijlvolle, houten terrasoverkapping is voorzien van glazen schuifpuien, waardoor je een groot deel van het jaar kunt genieten van deze buitenruimte.
 
Eerste verdieping
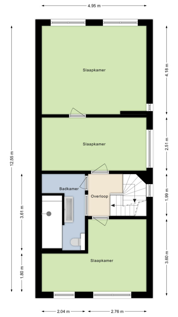
Via de overloop op de 1e verdieping zijn 2 slaapkamers, een riante kleedkamer en de moderne badkamer bereikbaar. Ook de 1e verdieping is uitgebreid aan de achterzijde, net als de begane grond. Aan de achterzijde ligt de riante hoofdslaapkamer en ook de slaapkamer aan de voorzijde is eveneens ruim bemeten. De 3e kamer is als kleed- en werkkamer in gebruik. Tenslotte ligt op deze verdieping de badkamer. Ook deze ruimte is smaakvol gerenoveerd in 2021 en bestaat uit een wastafelmeubel met dubbele wastafel, een zeer ruime inloopdouche, extra kasten en een 2e toilet.
 
Tweede verdieping
Middels een vaste trap is de 2e verdieping te bereiken. Hier ligt nog een extra slaapkamer en deze is extra groot, mede door een dakkapel. Deze dakkapel bevat tevens een rolluik. Op de overloop van deze zolderverdieping is de CV combiketel geplaatst (Remeha, eigendom, 2007) en ook hier zijn aansluitpunten voor het witgoed aanwezig.
 
Tuin
De tuin van dit fijne woonhuis is keurig netjes aangelegd en geheel omsloten. De luxe tuinkamer / terrasoverkapping is de eye-catcher en de tuin is helemaal onderhoudsvriendelijk aangelegd, met een terras, enkele bordessen met planten en een houten tuinhuisje. De tuin is gelegen op het Westen, hetgeen gunstig is voor wat betreft de zon. Tenslotte beschikt het perceel over een grote oprit, geschikt voor meerdere auto’s.
 
Heb je interesse in deze sfeervolle 2-onder-1-kap woning? Bel ons op 0475 252 111 of stuur ons een email. Onze makelaar Menno kan niet wachten om het aan jou te laten zien.
 

Wat maakt deze woning speciaal?

  • Ruime 2-onder-1-kap woning
  • Uitbouw over 2 verdiepingen
  • Vloerverwarming op de begane grond
  • Stijlvolle leefkeuken
  • 12 Zonnepanelen uit 2021
  • Moderne badkamer met royale inloopdouche
  • Vaste trap naar de zolderverdieping
  • Nette tuin met luxe terrasoverkapping / tuinkamer
  • Inpandige garage
  • Uitstekende woonwijk
  • Maar liefst 145 m² woonoppervlakte