Herten – Broekveeweg 15

Verkocht!

Geniet van de sfeer en charme van deze jaren '30 stijl notariswoning, met alle gemakken die een modern woonhuis biedt. En dat op een toplocatie, nabij de Maasplassen, in het gewilde Oolderveste.
Klik op de foto voor meer

Kenmerken

Woonoppervlakte
208 m2
Gebouwgebonden buitenruimte
7 m2
Externe bergruimte
22 m2
Inhoud
710 m3
Type object
WOONHUIS
Bouwjaar
2007
Vraagprijs
€ 775000 k.k.

De woning

Dit is wel een hele fijne combinatie; de charme en uitstraling van een luxe jaren ’30 woning, maar vanbinnen een (bijna) nieuwbouwhuis; duurzaam en goed geïsoleerd. Dat noemen wij nog eens “the best of both worlds”.
 
Deze vrijstaande notariswoning, symmetrisch gebouwd en met fraaie zichtlijnen, is gelegen in misschien wel de meest gewilde woonwijk van Herten, Oolderveste. Deze prachtige woonomgeving, gelegen aan de Maasplassen nabij Roermond, combineert het wonen aan het water, nabij voorzieningen en de bruisende binnenstad van Roermond.
Dit sfeervolle woonhuis bevat alle gemakken die men van een villa als deze mag verwachten; veel leefruimte, een speel- of werkkamer op de begane grond, een viertal slaapkamers op de 1e verdieping en een 5e (slaap)kamer op de 2e. Het woonhuis heeft een luxe, vrijstaande garage en een keurig aangelegde tuin.

  
De indeling is als volgt:
 
Begane grond
In de entreehal van dit woonhuis is de vide gelijk een prachtige eye-catcher en van hieruit zijn de diverse vertrekken te bereiken. De riante woonkamer, gelegen aan de achterzijde van dit fraaie object, heeft een mooie lichtinval door de ramen rondom en de erker aan de achterzijde. Aan de voorzijde is een deel van de woonkamer ingericht als speelhoek, echter kan dit ook prima fungeren als kantoor- of studeerkamer. Tenslotte is in de woonkamer een airco geplaatst. Vanuit de woonkamer is de stijlvolle leefkeuken toegankelijk. Deze beschikt over een U-opstelling en alle gangbare inbouwapparatuur, te weten: een 5-pits gasfornuis met wasemkap, een brede oven, koelkast en vaatwasser. Tevens is in deze keuken voldoende plek voor een eettafel. Achter de keuken is de bijkeuken toegankelijk, waar zich de aansluitpunten voor het witgoed bevinden. Tenslotte zijn in de hal ook het gastentoilet en de meterkast gelegen en beschikt het woonhuis over een alarmsysteem.
 
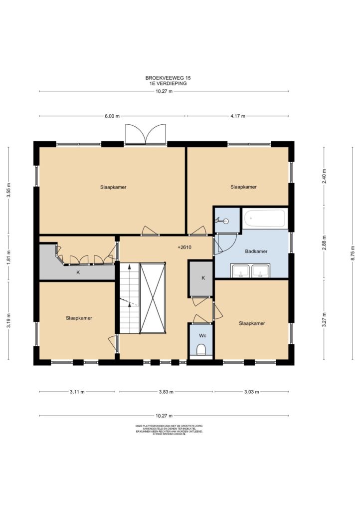
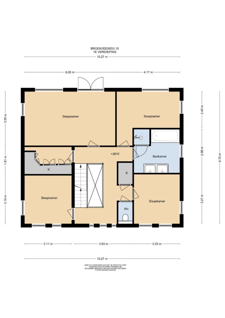
Eerste verdieping
Via de overloop / vide op de 1e verdieping zijn de 4 slaapkamers, een riante walk-in closet, een separaat toilet en de badkamer bereikbaar. De hoofdslaapkamer, gelegen aan de achterzijde van het woonhuis is zeer royaal en biedt toegang tot een balkon. De overige 3 slaapkamers zijn eveneens ruim van opzet en alle slaapkamers hebben een keurig niveau van afwerking, met o.a. PVC vloeren. De moderne badkamer is van alle gemakken voorzien, met een ligbad, een douchecabine en een wastafelmeubel met dubbele wastafel.
 
Tweede verdieping
Middels een vaste trap is de 2e verdieping te bereiken. Deze verdieping herbergt de technische installaties van de woning en hier is een extra kamer, welke momenteel als sportruimte in gebruik is. De technische installaties bestaan uit een warmte-terug-win (WTW) unit (eigendom, 2007), een heet water boiler (Nefit, eigendom, 2007) en een CV ketel (Nefit, eigendom, 2007).
 
Tuin
De tuin is een oase van rust en met een mooie balans tussen beplanting, terras en gazon, is het hier heerlijk vertoeven. De tuin is gesitueerd op het Zuiden en heeft aan 2 zijden een achterom. In de tuin bevindt zich een vrijstaande garage, met een tegelvloer, extra keukenblok en een dubbele, houten toegangsdeur. Tenslotte beschikt het perceel over een riante oprit, geschikt voor meerdere voertuigen.
 
Heeft u interesse in dit sfeervolle woonhuis op deze toplocatie? Bel ons op 0475 252 111 of stuur ons een email. Onze makelaar Menno kan niet wachten om het aan u te laten zien.
 
 

Wat maakt deze woning speciaal?

  • Luxe, vrijstaande notariswoning
  • Uitstekende geïsoleerd, bouwjaar 2007
  • Vloerverwarming op de BG en 1e verdieping en wandverwarming
  • Veel leefruimte, maar liefst 208 m² woonoppervlakte
  • In totaal 5 slaapkamers
  • Fraaie jaren ’30 details, met o.a. een symmetrische bouw en erker
  • Keurige tuin met luxe, vrijstaande garage
  • Op loopafstand van het winkelcentrum van Herten, een basisschool en de Maasplassen